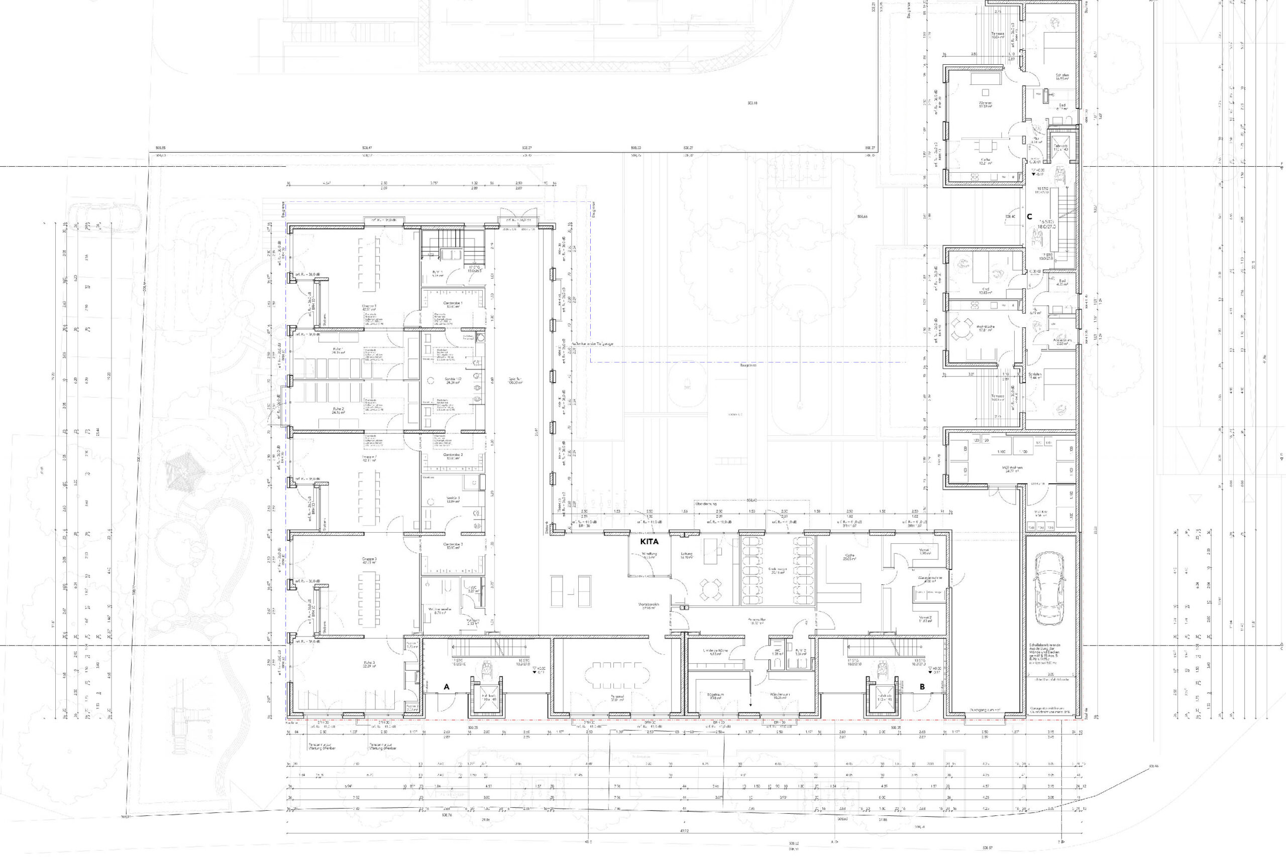
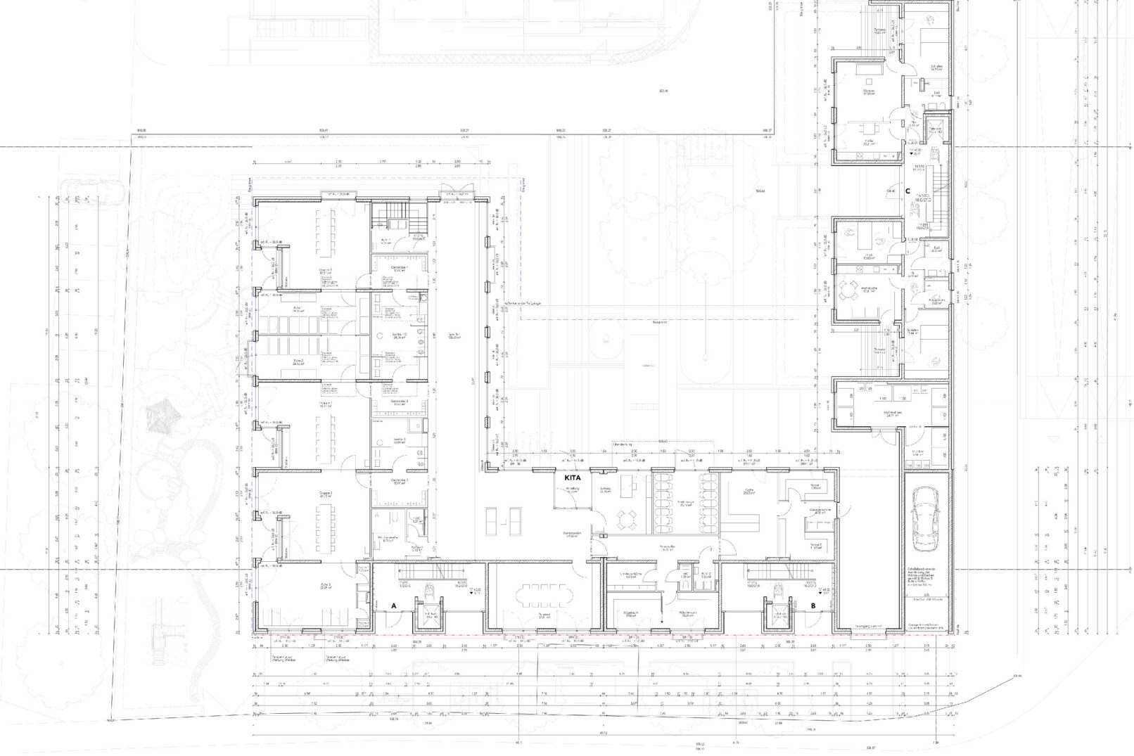
Die Integration einer Kindertagesstätte in ein Wohngebäude verlangt besondere Sorgfalt. Wohnen braucht Rückzug, eine Kita Offenheit und Bewegung.
Der Zugang zur Kita liegt deshalb im ruhigen Innenhof – fern vom Straßenraum. Hier treffen sich Eltern, hier beginnt und endet der Tag. Durch große Fenster ist der Spielflur bereits von außen präsent: ein heller, verbindender Raum, der die drei Gruppenräume zusammenhält und sich im Alltag zum gemeinsamen Ort entwickelt hat – zum Spielen, Warten und inzwischen auch zum Essen.
Was innen der Spielflur leistet, setzt sich außen fort: Vor der Westfassade liegt die sonnige Freifläche. Alle Gruppenräume orientieren sich dorthin und machen Aktivitäten im Freien selbstverständlich.









