Der viergeschossige Riegel fasst den Quartiersplatz räumlich und gibt ihm eine klare Adresse. Im Erdgeschoss belebt eine Gewerbeeinheit den öffentlichen Raum und verankert das Gebäude im städtischen Kontext.
Die Erschließung der Wohnungen erfolgt über die höher liegende Esplanade. So entstehen ruhige Zugänge abseits des Platzes und eine eindeutige Trennung zwischen öffentlicher und privater Nutzung.
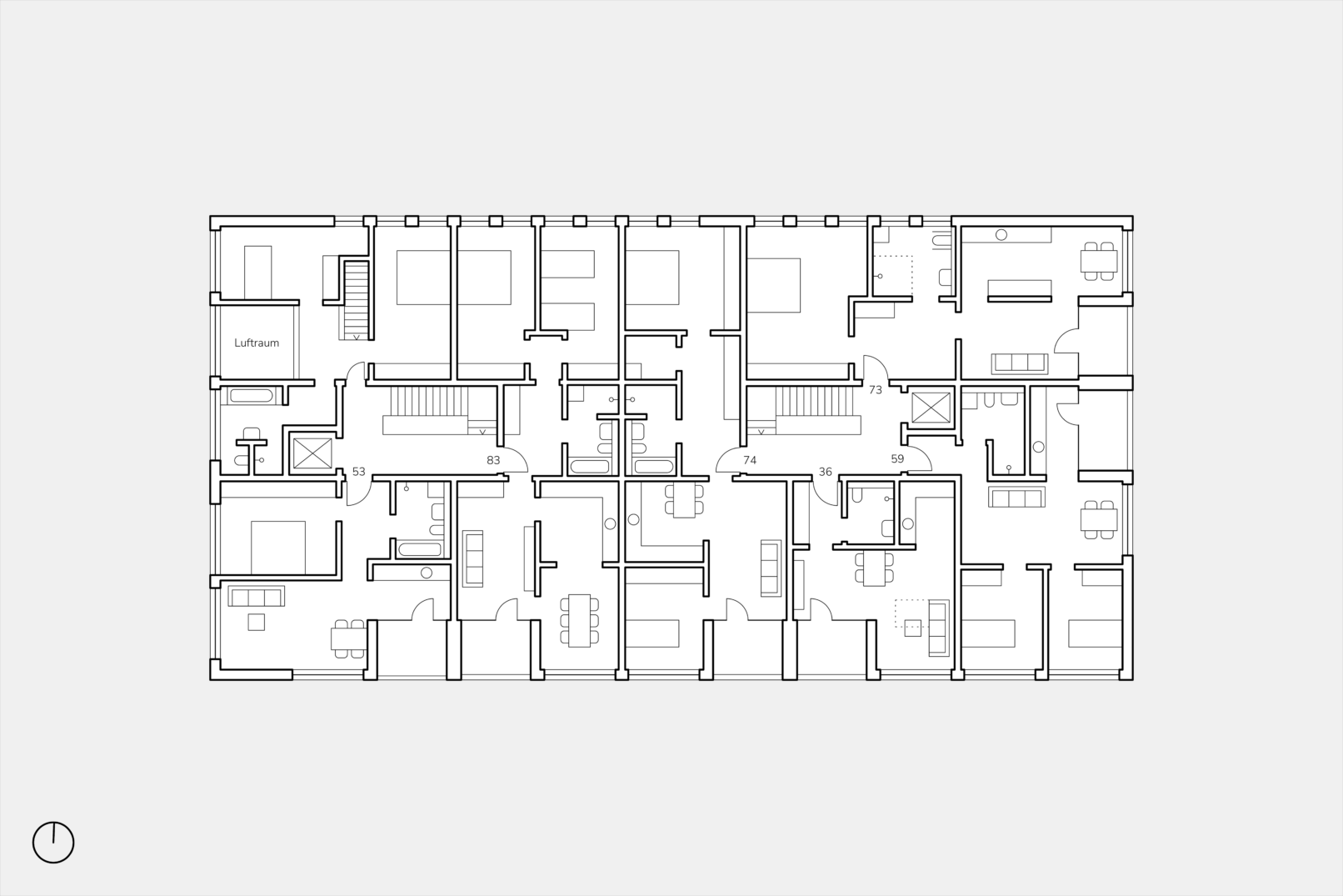
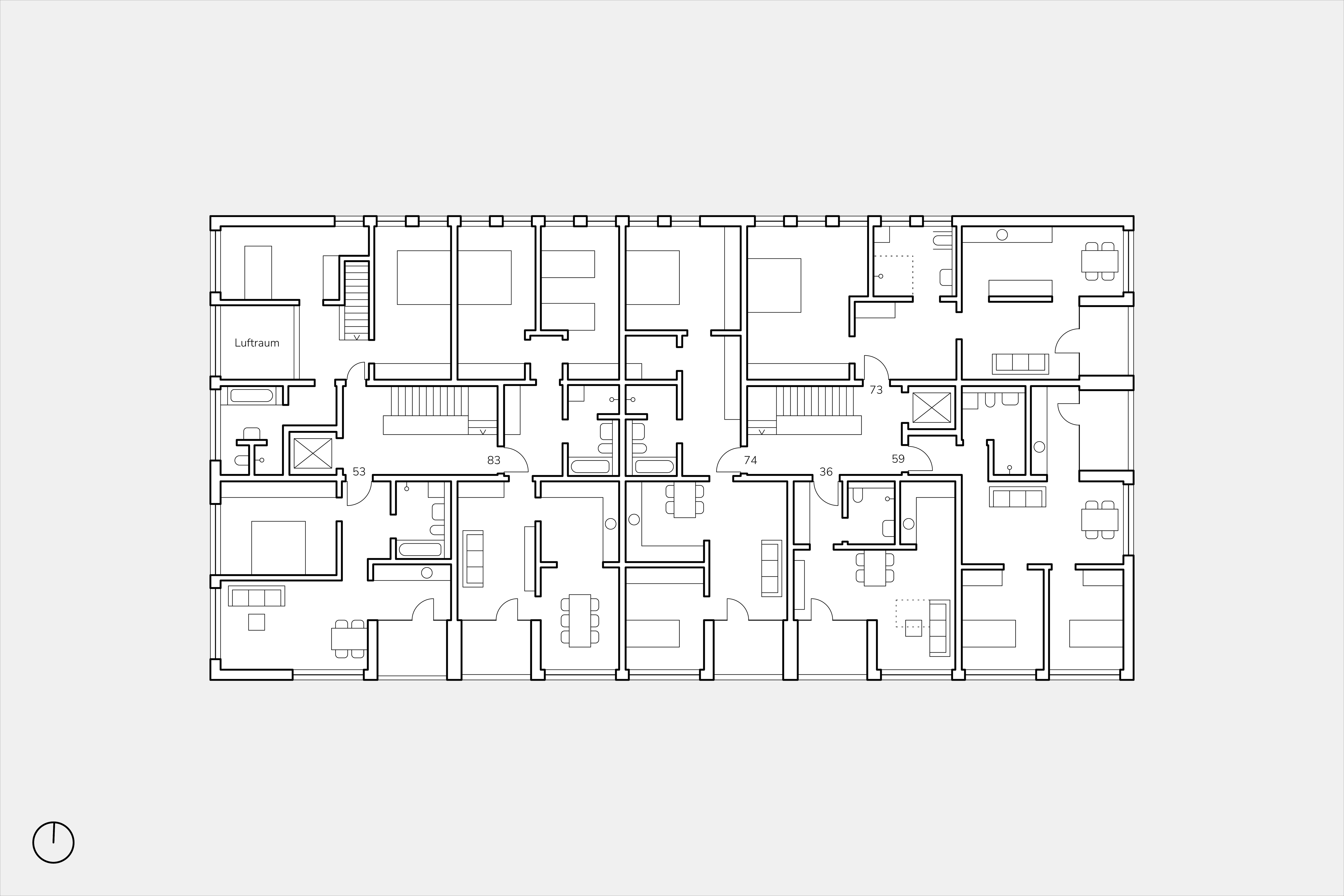
Die Grundrisse sind klar organisiert und folgen einer wiederkehrenden Struktur. Unterschiedliche Wohnungstypen lassen sich so wirtschaftlich realisieren und zugleich gut nutzen. Ergänzt wird das Spektrum durch zwei freifinanzierte Maisonettewohnungen, die innerhalb der klaren Systematik zusätzliche räumliche Qualität bieten. Loggien schaffen einen geschützten Außenbezug.
Das Gebäude wurde als Passivhaus und Effizienzhaus 40+ realisiert. Geheizt wird über Grundwasser-Wärmepumpen in Kombination mit Lüftungsanlagen mit Wärmerückgewinnung. Eine Photovoltaikanlage auf dem Dach versorgt die Wohnungen im Rahmen eines Mieterstrommodells, überschüssige Energie wird gespeichert.






